Ingenieurbüro für Statik und Tragwerksplanung Dipl.-Ing. (FH) Florian Wintergerst Beratender Ingenieur DEKRA Kooperationspartner Construction Management
Ingenieurbüro für Statik und Tragwerksplanung Dipl.-Ing. (FH) Florian WintergerstBeratender IngenieurDEKRA Kooperationspartner Construction Management 

Referenzen: Statik + Tragwerksplanung: Wohnanlagen

Wohnanlage, St. Leon-Rot, Baden-Württemberg

Fertigstellung 2022

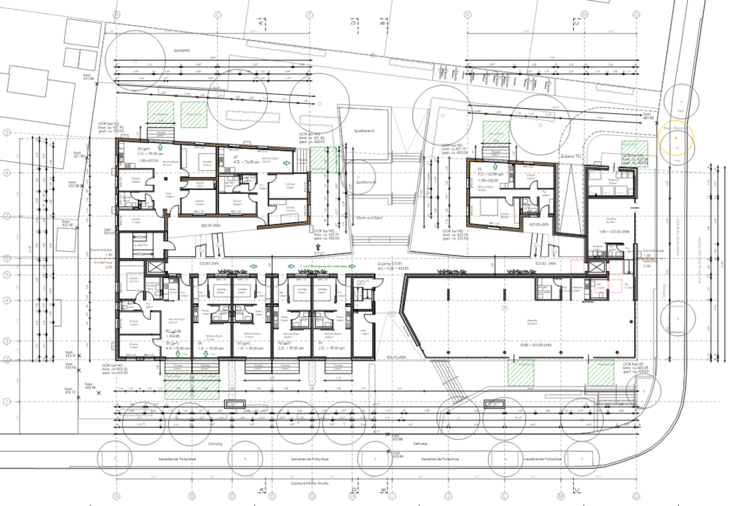
Wohnanlage mit Tiefgarage, Landkreis Tübingen, Baden-Württemberg

Holz-Hybrid-Gebäude in Erdbebenzone 3

Fertigstellung 2023

Projektleitung Tragwerksplanung - i.A. der Ingenieurgesellschaft Meiss Grauer Holl mgH & Co. KG www.igmgh.de

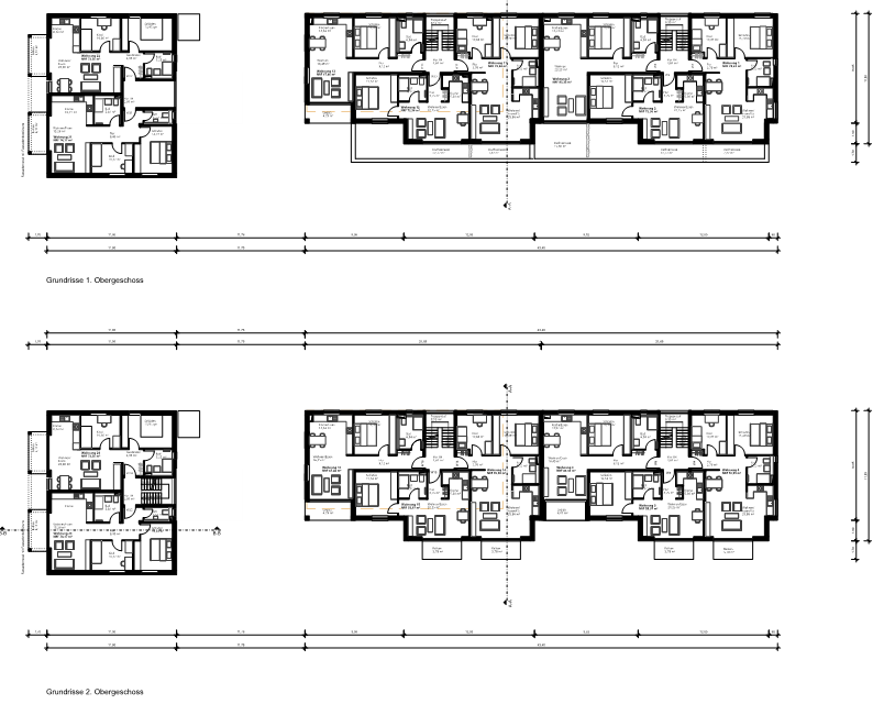
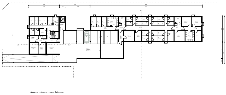
Wohnanlage mit Tiefgarage, Stuttgart, Baden-Württemberg

Fertigstellung 2025

Projektleitung Tragwerksplanung - i.A. der Ingenieurgesellschaft Meiss Grauer Holl mgH & Co. KG www.igmgh.de

Bildrechte:
Die dargestellten Abbildungen und Projektinformationen werden mit freundlicher Genehmigung der jeweiligen Auftraggeber bzw. Projektbeteiligten veröffentlicht.

Druckversion | Sitemap
© Florian Wintergerst ------------------------------------------------------------------------------Ingenieurbüro Wintergerst ------------------------------------------------------------------------ Möhringer Landstr. 37, 70563 Stuttgart I Tel. 0711 4083716---------------------------------Klosterstr. 16, 66851 Queidersbach I Tel. 06371 61273734---------------------------------- E-Mail: info@ib-wintergerst.de