Ingenieurbüro für Statik und Tragwerksplanung Dipl.-Ing. (FH) Florian Wintergerst Beratender Ingenieur DEKRA Kooperationspartner Construction Management
Ingenieurbüro für Statik und Tragwerksplanung Dipl.-Ing. (FH) Florian WintergerstBeratender IngenieurDEKRA Kooperationspartner Construction Management 

Referenzen: Statik + Tragwerksplanung: Industrie / Hallen

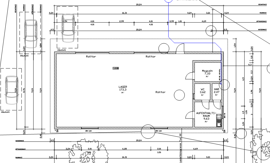
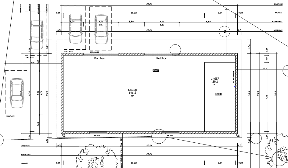
Neubau Gerätehalle, Weintank- und Maischetanklager

Landkreis Bad Dürkheim, Rheinland-Pfalz

Fertigstellung 2022

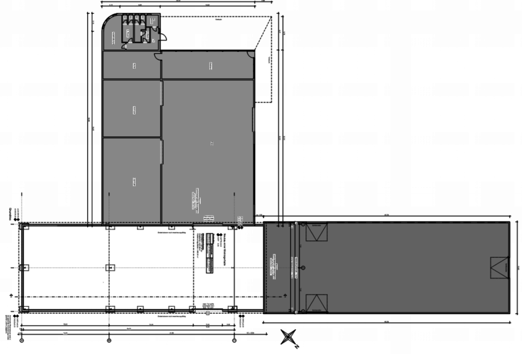
Produktionshalle mit Büro- / Wohngebäude in Holzbauweise

Trippstadt, Rheinland-Pfalz

Fertigstellung 2016

Produktionshalle mit Verwaltungsgebäude und Überdachung

Landkreis Bad Dürkheim, Rheinland-Pfalz

Fertigstellung 2015

Neubau Lagerhalle mit überdachtem Lagerplatz

Landkreis Kaiserslautern, Rheinland-Pfalz

Planung 2015

Neubau Lagerhalle

Landkreis Birkenfeld, Rheinland-Pfalz

Fertigstellung 2012

Projektleitung Tragwerksplanung i.A. Ingenieurbüro Bohl

Bildrechte:
Die dargestellten Abbildungen und Projektinformationen werden mit freundlicher Genehmigung der jeweiligen Auftraggeber bzw. Projektbeteiligten veröffentlicht.

Druckversion | Sitemap
© Florian Wintergerst ------------------------------------------------------------------------------Ingenieurbüro Wintergerst ------------------------------------------------------------------------ Möhringer Landstr. 37, 70563 Stuttgart I Tel. 0711 4083716---------------------------------Klosterstr. 16, 66851 Queidersbach I Tel. 06371 61273734---------------------------------- E-Mail: info@ib-wintergerst.de