Ingenieurbüro für Statik und Tragwerksplanung Dipl.-Ing. (FH) Florian Wintergerst Beratender Ingenieur DEKRA Kooperationspartner Construction Management
Ingenieurbüro für Statik und Tragwerksplanung Dipl.-Ing. (FH) Florian WintergerstBeratender IngenieurDEKRA Kooperationspartner Construction Management 

Referenzen: Statik + Tragwerksplanung: Schulen / Kindergärten

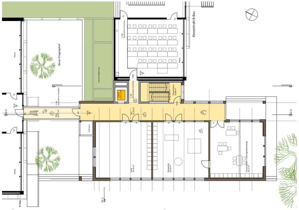
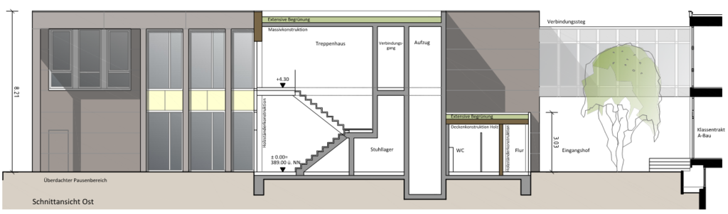
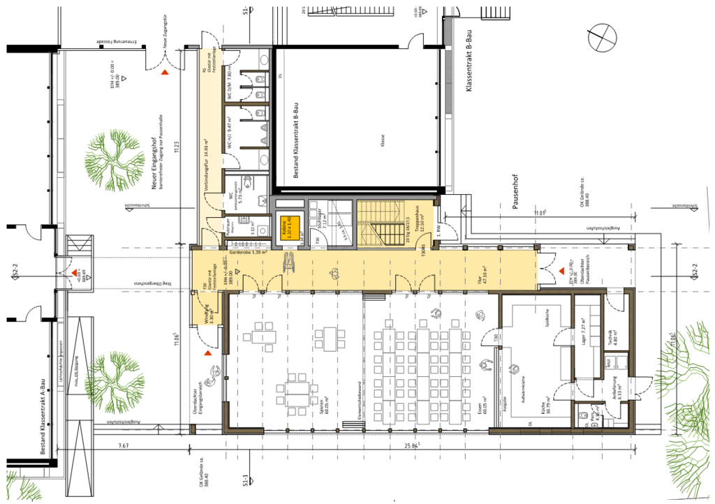
Erweiterung / Umbau Schule für Mensa, Küche und Nebenräume in 2 Geschossen

Landkreis Calw in Baden-Württemberg

Holz-Hybrid-Gebäude mit Anschluss an Bestandsgebäude in Erdbebenzone 3

Fertigstellung 2020

Projektleitung Tragwerksplanung - i.A. der Ingenieurgesellschaft Meiss Grauer Holl mgH & Co. KG www.igmgh.de

Neubau Kinderhaus "UFO"

Landkreis Esslingen in Baden-Württemberg

Neubau einer 2-stöckigen Kindertagesstätte als Holzbau mit gebogenen Brettsperrholzelement-Wänden und Elemen-Akustik-Decken

Fertigstellung 2008

Projektleitung Tragwerksplanung - i.A. der Ingenieurgesellschaft Meiss Grauer Holl mgH & Co. KG www.igmgh.de

Erweiterung / Aufstockung Kindergarten mit Anbindung an altes Feuerwehrhaus

Landkreis Böblingen in Baden-Württemberg

Aufstockung in Holzbauweise

Fertigstellung 2024

Projektleitung Tragwerksplanung - i.A. der Ingenieurgesellschaft Meiss Grauer Holl mgH & Co. KG www.igmgh.de

Umbau / Sanierung Schulgebäude & Anbau Gemeindesaal 

Landkreis Reutlingen in Baden-Württemberg

Umbau & Sanierung des denkmalgeschützten Schulhauses in Erdbebenzone 2

Anbau Gemeindesaal in Holzbauweise mit Glas-/Holzfassade

Fertigstellung 2021

Projektleitung Tragwerksplanung BA1 - i.A. der Ingenieurgesellschaft Meiss Grauer Holl mgH & Co. KG www.igmgh.de

Neubau Sporthalle Gymnasium

Landkreis Tübingen in Baden-Württemberg

Neubau als Massivbau mit Holzdachkonstruktion in Erdbebenzone 3

Fertigstellung 2009

Projektingenieur Tragwerksplanung Holzbau - i.A. der Ingenieurgesellschaft Meiss Grauer Holl mgH & Co. KG www.igmgh.de

Bildrechte:
Die dargestellten Abbildungen und Projektinformationen werden mit freundlicher Genehmigung der jeweiligen Auftraggeber bzw. Projektbeteiligten veröffentlicht.

Druckversion | Sitemap
© Florian Wintergerst ------------------------------------------------------------------------------Ingenieurbüro Wintergerst ------------------------------------------------------------------------ Möhringer Landstr. 37, 70563 Stuttgart I Tel. 0711 4083716---------------------------------Klosterstr. 16, 66851 Queidersbach I Tel. 06371 61273734---------------------------------- E-Mail: info@ib-wintergerst.de